
Finanças
21 de agosto de 2025
Uso do BIM no gerenciamento de custos em pequenas e médias obras na construção civil
DOI: 10.22167/2675-6528-2024023
E&S 2025, 6: e2024023
Giovanna Aparecida Alves Rosa; Ana Beatriz de Figueiredo Oliveira
O planejamento de obras, conforme o Project Management Body of Knowledge (PMBOK), é vital para o gestor, pois proporciona eficiência na execução de tarefas de duração finita e com ciclos definidos[1]. A estimativa de custos, em um primeiro momento, utiliza indicadores históricos, com destaque para o orçamento analítico, que detalha os custos de serviços e insumos[2]. Os problemas em obras, relacionados ao cumprimento do cronograma físico-financeiro, resultam em alterações que elevam valores e prazos para cobrir falhas de projeto ou planejamento. Muitos decorrem de equívocos na compatibilização dos projetos, o que pode aumentar os custos em cerca de 30%[3].
Os atrasos em obras podem ser observados a nível global e afetam a economia de diversos países, principalmente por falhas de gestão. Como resultado, ocorrem conflitos e processos judiciais, elevação dos custos, redução dos lucros, comprometimento da qualidade, necessidade de mediação e extensão dos cronogramas. No Brasil, houve um aumento significativo nos atrasos de obras em São Paulo entre 2005 e 2010 (65%) e um crescimento expressivo nas ações judiciais contra construtoras (2.600% entre 2008 e 2013), o que pode ter resultado no aumento de despesas[4].
O PMBOK[1] menciona a estimativa paramétrica, que utiliza algoritmos baseados em dados históricos ou parâmetros. O Building Information Modeling (BIM) é aplicável a essa parametrização, pois oferece projetos integrados e precisos. Definido como um conjunto de políticas, processos e tecnologias, o BIM é crucial para o gerenciamento de projetos de edifícios em modelo digital[5].
No Brasil, está em vigor o Decreto 10.306/2020[6], que estabelece a utilização da metodologia BIM para aprimorar os projetos da construção civil na esfera pública, como ferramenta estratégica voltada à maior eficiência no uso dos recursos públicos e à redução de riscos financeiros [7].
Diante do contexto e dos dados apresentados, observa-se a necessidade de ferramentas que facilitem a gestão de obras, o que reforça a importância da abordagem da temática do BIM e, consequentemente, torna relevante o estudo de sua aplicação na gestão de custos. Dessa forma, o objetivo da pesquisa é investigar de que forma o BIM pode contribuir para a gestão de custos em obras, com ênfase em menores empreendimentos.
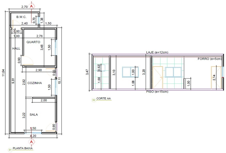
Esta pesquisa consiste em uma análise descritiva e quantitativa baseada em um questionário, apoiada previamente por um modelo prático que exemplifica como o BIM pode auxiliar na gestão de custos. O estudo envolve o levantamento de materiais em uma residência de pequeno porte (46,59 m²) e a comparação do projeto de arquitetura nas atividades de alvenaria e revestimentos de paredes, realizados em Revit e AutoCad[8,9].
O Revit é um software da Autodesk voltado para modelagem de informações da construção (BIM), que permite criar modelos tridimensionais paramétricos que unem informações geométricas e dados construtivos. É amplamente utilizado para projetar, documentar e gerenciar edifícios e infraestrutura de forma colaborativa[8,10]. O AutoCAD, também da Autodesk, é um software de desenho assistido por computador, o Computer Aided Design (CAD), utilizado para elaboração de desenhos técnicos 2D e modelagem 3D. Sua aplicação é comum em arquitetura, engenharia e design, com foco no detalhamento e na documentação de projetos[9,11].
Para o modelo A (Figura 1), o levantamento ocorreu por meio de planilha em Excel, com auxílio do AutoCad. No modelo B, a execução foi realizada no Revit.

Fonte: Elaboração própria dos autores, com uso do software AutoCAD.
Para o modelo B (Figura 2), modelaram-se paredes em camadas, ideais para o projeto executivo, pois evitam interferências (sobreposição de camadas). Foram utilizadas famílias de esquadrias adaptáveis, conforme a espessura da parede.

Fonte: Elaboração própria dos autores, com uso do software Revit.
Na Figura 3, é possível visualizar os detalhes das camadas componentes de uma das paredes do projeto modelado, separadas por cores para facilitar a visualização. Nesta parede, há as seguintes camadas: alvenaria de vedação em bloco cerâmico com espessura de nove cm; camada única de reboco/emboço; argamassa colante para o assentamento de revestimento cerâmico; e o revestimento cerâmico propriamente dito, de um lado da parede. Do outro lado, encontra-se uma camada de reboco/emboço mais espessa e a massa corrida à base de Polivinil Acetato (PVA), que prepara a superfície para o recebimento de pintura.

Fonte: Elaboração própria dos autores, com uso do software Revit.
A partir dos modelos, foram construídas tabelas com fórmulas para determinar os quantitativos, no Excel e no Revit. Em seguida, investigaram-se, por meio de questionário (via Google Forms), a frequência de utilização do BIM por profissionais da construção civil, seus benefícios na gestão de custos, empecilhos de implantação, aplicação em pequenas e médias obras e outras práticas relacionadas. A estruturação teve como referência a planilha de diagnóstico BIM, disponibilizada pelo Governo Federal por meio do Ministério do Desenvolvimento, Indústria, Comércio e Serviços[12], que constitui um instrumento metodológico para apoiar a avaliação da maturidade BIM nos setores público e privado, e permite identificar lacunas e oportunidades de aprimoramento no uso do BIM, o que favorece a construção de estratégias mais eficazes de implementação.
Para o questionário, elaboraram-se 29 questões, divulgadas por meio de redes sociais e e-mails entre janeiro e março de 2023. No total, foram recebidas 37 respostas. Sua organização estrutura-se da seguinte forma:
- Seção 1: Termo de Consentimento Livre e Esclarecido (TCLE) da pesquisa, com seus objetivos e uma breve explicação sobre o tema;
- Seção 2: questões para conhecimento do perfil do respondente, com informações pessoais e profissionais;
- Seção 3: questões sobre a experiência profissional, relacionada à gestão de custos na gestão de obras;
- Seção 4: questões para demonstrativo de opinião acerca das situações colocadas, com possibilidade de concordância ou discordância, bem como de fazer considerações gerais acerca do CAD e do BIM (não obrigatórias).
Levantou-se a hipótese de que o uso do BIM requer conhecimento específico e ainda é pouco difundido na região de estudo, tanto de forma geral quanto em sua aplicação à gestão de custos. A esquematização da metodologia é visualizada na Figura 4.

Fonte: Elaboração própria dos autores.
Através da pesquisa, pôde-se entender a realidade da gestão de projetos quanto à gestão dos custos em obras menores. Com o BIM como ferramenta de gestão aplicada aos custos, analisou-se o comparativo entre CAD e BIM, além do questionário, que apresentou os resultados à hipótese levantada.
Exemplo prático comparativo BIM x CAD
Para o modelo A, o processo de levantamento (Tabela 1) ocorreu pelo cálculo manual das áreas das camadas das paredes, a partir das larguras e alturas em planta e corte, com desconto das esquadrias. Os dados do AutoCad foram inseridos manualmente no Excel. Em seguida, foram obtidos os materiais para o modelo B (Tabela 2). Apesar de utilizarem as mesmas fórmulas, o Revit disponibiliza parâmetros de área e volume, com necessidade apenas da modelagem, o que compensa o tempo gasto na construção do modelo e evita possíveis erros humanos no seu desenvolvimento.
Tabela 1. Quantitativos de materiais obtidos pelo Excel, com auxílio do AutoCad (modelo A)

Tabela 2. Quantitativos de materiais obtidos por tabelas criadas no Revit (modelo B)

Observa-se uma diferença de 10 blocos cerâmicos e um saco de cimento, pouco significativa, que pode decorrer de arredondamento ou das medidas referenciais em cada software.
Foi realizada uma cotação de preços em Morrinhos – GO, o valor do bloco cerâmico estava R$ 1,20. O modelo B teria um gasto maior do que o A, de R$12,00. Porém, o preço do saco de cimento era R$ 35,00. Como no modelo A há um saco a mais, para calcular o valor economizado com o modelo B basta subtrair o custo dos blocos do custo do cimento, o que gera uma economia de R$ 23,00. No modelo A, inicialmente, encontrou-se um total de 3.563 blocos, considerando a altura da parede do balcão da cozinha igual às demais. Após comparação com o modelo B, isso foi corrigido, totalizando 3.434 blocos.
A experiência adquirida neste estudo comparativo comprovou que o BIM evita retrabalhos, mas exige conhecimento para aplicação (nesse caso, a modelagem e a montagem das tabelas com os parâmetros corretos). Como visto, no modelo A, os resultados obtidos são mais suscetíveis à falha humana. Em projetos maiores, as diferenças de valores podem ser mais relevantes. A viabilidade do uso de cada um depende do fluxo de trabalho, dos prazos e do nível de precisão em cada situação.
Perfil dos respondentes
Foram apresentadas questões referentes ao perfil do respondente. A maioria é composta por pessoas jovens (34 com até 34 anos), o que justifica o interesse pela temática. Quanto ao gênero, 20 participantes são do público masculino e 17, do feminino. Os participantes atuam, majoritariamente, em Morrinhos, Catalão e Rio Quente (27 respondentes).
A maior parte é formada por engenheiros civis (32 pessoas) e arquitetos (três pessoas). A maioria atua profissionalmente entre um e cinco anos (26 pessoas). Referente ao nível de escolaridade, 34 pessoas possuem o ensino superior completo; dessas, 13 têm pós-graduação concluída, e espera-se qualificação para o exercício das funções, devido à busca pela educação continuada para aprimorar habilidades e conhecimentos. Em relação ao regime de atuação, predomina o trabalho autônomo (17 pessoas); além de nove trabalhadores regidos pela Consolidação das Leis do Trabalho (CLT) e sete como pessoa jurídica.
Os resultados relacionam-se ao público jovem, pois muitas pessoas optam por atuar de forma autônoma ao sair da universidade, como forma de ingressar no mercado de trabalho, adiante da falta de experiência e das dificuldades para conseguir emprego em regime CLT ou empreender. Um exemplo disso foi apresentado pelo Conselho de Arquitetura e Urbanismo do Brasil[13], em uma pesquisa censitária que apontou que a maioria dos arquitetos brasileiros são jovens, e 54% atuam como profissionais liberais ou autônomos.
Quanto à atuação com o BIM, 24 profissionais já atuaram, enquanto 13 ainda não, um número significativo, o que justifica investigar as causas. Dentre os que usam o BIM, todos atuam entre um e cinco anos, o que está relacionado à faixa etária e ao tempo de carreira.
Entre os que não trabalham com o BIM, identificaram-se causas da não aderência (Figura 5).

Fonte: Elaboração própria dos autores.
Como é uma metodologia relativamente nova, a aderência é complexa. As pessoas alegam dificuldade no uso do BIM, o que exige adaptação e demanda tempo, além do alto investimento nos softwares e da falta de motivação das empresas para que os colaboradores utilizem novas ferramentas. De acordo com Aftab et al.[14], os principais desafios para a adesão são: a ausência de capacitação técnica dos profissionais, o desconhecimento generalizado sobre o BIM, os elevados custos iniciais de implementação, a rejeição ou dificuldade em aceitar mudanças e a complexidade dos softwares.
Gestão de custos em obras
Sobre a gestão de custos, questionou-se se há alguma ferramenta no local de trabalho. A maioria, 64,9%, confirmou a inexistência, o que indica que muitos não se preocupam em fazer planejamentos mais assertivos. Quanto à existência de um profissional para a gestão de custos, os resultados são apresentados na Figura 6.

Fonte: Elaboração própria dos autores.
Quanto à comparação entre planejado e executado, muitas pessoas não percebem ou não sabem opinar sobre as divergências nos custos (Figura 7), o que indica uma falha de gestão, principalmente com relação ao controle de obras.

Fonte: Elaboração própria dos autores.
Para as pessoas que marcaram uma opção diferente de “nunca”, os principais motivos citados estão na Figura 8.

Fonte: Elaboração própria dos autores.
Pelas respostas obtidas, percebe-se vários motivos causadores de divergências nos custos, entre planejado e executado, como por exemplo, os erros no orçamento e no planejamento. A simulação da construção virtual pelo BIM pode mitigar alguns dos motivos, considerados erros de gestão, ao permitir a entrega de conteúdos mais reais e ao impedir gastos excessivos. Observa-se, ainda, uma falta de maturidade dos profissionais e empresas para trabalhar com uma gestão de custos mais assertiva. Na maioria das vezes, não há um profissional exclusivo para isso, o que dificulta a aderência ao BIM.
Comparação BIM versus CAD
Na sequência, elaboraram-se questões para instigar os respondentes, segundo suas experiências profissionais e conhecimentos técnicos. Acerca da falta de conhecimento em BIM no mercado brasileiro e de sua pouca utilização pelos profissionais para gestão de custos em obras, houve uma concordância considerável (59,4% e 72,9%, respectivamente). Entre os concordantes, 10 não trabalham com o BIM, e esses indicam ausência de treinamento, falta de tempo e resistência para aprender algo novo, o que justifica esse desconhecimento.
Sobre o planejado e o executado, foi questionado se é possível observar diferenças nos custos ao usar o procedimento tradicional de levantamento e orçamentação com CAD e planilhas orçamentárias, e foi feito o mesmo questionamento em relação à utilização do BIM (Figura 9).

Fonte: Elaboração própria dos autores.
Conforme a Figura 9, nota-se que a maioria dos respondentes concorda quanto à existência de diferenças entre o planejado e o executado. Também se observa um grau considerável de neutralidade, possivelmente em razão da não utilização do BIM como ferramenta de apoio ao planejamento e à gestão de custos. As concordâncias, por sua vez, podem ser atribuídas ao reconhecimento de que, para realizar uma gestão de custos mais aderente à realidade, com base no levantamento de quantitativos via BIM, é necessário possuir conhecimento técnico, tanto teórico quanto prático, na área.
Em sequência, perguntou-se acerca da frequência de inconsistências e retrabalhos no processo tradicional de levantamento e orçamentação, com softwares em CAD e planilhas. Logo em seguida, fez-se o mesmo questionamento com base no processo realizado com o BIM (Figura 10).

Fonte: Elaboração própria dos autores.
Pela Figura 10, percebe-se que grande parte concorda que, quando se utiliza o CAD e se faz o levantamento por planilhas, é frequente a ocorrência de inconsistências e retrabalhos, devido a vários fatores, como erros nos projetos, falta de especificações e detalhamento, esquecimento do cálculo de algum material, entre outros aspectos. Verifica-se, também, grande discordância quanto aos retrabalhos e inconsistências quando se utiliza o BIM. Como explicação, pode-se citar as facilidades que os softwares BIM oferecem, como a representação automatizada das vistas de uma estrutura, com nível de detalhe ajustado conforme necessário, o que permite a visualização e a correção de problemas em tempo reduzido, como ocorre no Revit.
Acerca das pequenas e médias obras, foi questionado sobre a frequência de falhas na gestão de custos, e constatou-se uma concordância de 75,6%. O resultado indica pontos de melhoria da gestão dessas obras, pois é comum a ausência dos projetos complementares, irregularidade nas construções, falta de planejamento e orçamentação empírica. De acordo com Santos et al.[15], a execução de empreendimentos pode ser comprometida por fatores como falhas nos projetos, interferências externas, baixa qualificação da mão de obra e falta de integração entre as etapas de planejamento e obra.
Investigou-se, também, se o uso do BIM é viável somente para obras de grande porte, com resultado de 83,8% de discordância. Entre os discordantes, 22 trabalham com o BIM; 16 atuam como autônomos e acumulam funções além da gestão de custos. Isso pode estar relacionado à localização da pesquisa, onde há grande presença de obras menores e, provavelmente, os profissionais já tiveram alguma experiência com a metodologia nesse nicho.
Posteriormente, foi questionado se a implementação do BIM poderia resolver problemas de falhas na compatibilização de projetos ou de gerenciamento ineficiente das obras e pós-obras (Figura 11).

Fonte: Elaboração própria dos autores.
O resultado explica as respostas anteriores, pois fica claro a relevância do uso do BIM atualmente. Dos 32 concordantes, 22 possuem até cinco anos de atuação profissional, nove têm até 10 anos de atuação e somente um atua há mais de 10 anos. Assim, identifica-se um novo padrão de mentalidade no mercado, cujos profissionais mais novos são abertos a novas metodologias e tecnologias, e acreditam que parte dos problemas em obras poderia ser resolvida mediante sua implantação, o que evitaria retrabalhos e falhas.
Ao final, apresentaram-se considerações gerais, primeiramente sobre o uso do CAD, para a gestão de custos (Figura 12).

Fonte: Elaboração própria dos autores.
Logo após, de forma similar, denotaram-se as considerações na perspectiva do BIM (Figura 13).

Fonte: Elaboração própria dos autores.
Perante as análises do questionário, nota-se que, na região estudada, o uso do BIM está em ascensão e é novidade para muitos profissionais – apesar de ser utilizado por uma quantidade razoável de pessoas, principalmente as mais jovens – embora permaneça subestimado pela falta de conhecimento. Isso vale tanto para o processo de adesão ao uso multidisciplinar quanto para a gestão de custos, que ainda utiliza métodos tradicionais.
Por meio da análise realizada, verificou-se que tanto o CAD quanto o BIM são ferramentas úteis, cada uma com suas vantagens e limitações. No entanto, no que se refere à gestão de custos, o uso do CAD pode ser limitado e, embora seja possível extrair quantitativos, trata-se de um processo manual que exige atenção e verificação. Sob outra perspectiva, o BIM permite o desenvolvimento de modelos complexos, com informações detalhadas do projeto e obtenção mais automatizada dos quantitativos. Apesar das dificuldades de implantação, o BIM tem ganhado destaque pela necessidade de metodologias eficazes na gestão de obras.
Portanto, evidencia-se que a pesquisa apresenta resultados de uma análise descritiva e quantitativa, com uma amostra restrita de respondentes, o que impede a generalização dos resultados para o setor da construção civil. Recomenda-se que pesquisas futuras ampliem a amostragem e explorem comparações entre diferentes métodos de orçamentação, como o uso do BIM em relação ao modelo tradicional/CAD.
REFERÊNCIAS
[1] Project Management Institute (PMI). 2017. Guia do Conhecimento em Gerenciamento de Projetos (Guia PMBOK). 6ed. Estados Unidos da América: PMI.
[2] Mattos, A.D. 2010. Planejamento e Controle de Obras. 1ed. São Paulo, SP: Pini.
[3] Uchoa, M.K.M. 2017. Planejamento e controle de obras utilizando tecnologia BIM. Dissertação de Mestrado. Universidade Federal de Pernambuco, Recife, PE.
[4] Carvalho, A.B.; Maués, L.M.F.; Moreira, F.S.; Reis, C.J.L. 2021. Study on the factors of delay in construction works. Ambiente Construído. 21(3): 27-46. http://dx.doi.org/10.1590/s1678-86212021000300536.
[5] Succar, B. 2009. Building information modelling framework: A research and delivery foundation for industry stakeholders. Automation in Construction. 18(3): 357-375.
[6] Brasil. 2020. Decreto n. 10.306, de 02 de abril de 2020. Estabelece a utilização do Building Information Modelling na execução direta ou indireta de obras e serviços de engenharia realizada pelos órgãos e pelas entidades da administração pública federal, no âmbito da Estratégia Nacional de Disseminação do Building Information Modelling – Estratégia BIM BR, instituída pelo Decreto n. 9.983, de 22 de agosto de 2019. Diário Oficial da União: Brasília, DF. Disponível em: https://www.planalto.gov.br/ccivil_03/_ato2019-2022/2020/decreto/d10306.htm. Acesso em: 22 jun. 2025.
[7] Magalhães, R. M.; Zapp, L. O.; Scheer, S. 2024. Avaliação da macro maturidade BIM no mercado brasileiro. In: Anais do Encontro Nacional de Tecnologia do Ambiente Construído. Porto Alegre, RS. Disponível em: https://eventos.antac.org.br/index.php/entac/article/view/5894/4827. Acesso em: 30 jun. 2025.
[8] Autodesk. Revit – Product Overview. Disponível em: https://www.autodesk.com/products/revit/overview. Acesso em: 22 jun. 2025.
[9] Autodesk. AutoCAD – Product Overview. Disponível em: https://www.autodesk.com/products/autocad/overview. Acesso em: 22 jun. 2025.
[10] Eastman, C.M.; Ghang, L.; Teicholz, P.M.; Sacks, R. 2018. BIM handbook: a guide to building information modeling for owners, designers, engineers, contractors, and facility managers. 3ed. Hoboken: Wiley.
[11] Figueiredo, K. 2023. AutoCAD 2023: Desenho técnico em duas e três dimensões. São Paulo: Érica.
[12] Ministério do Desenvolvimento, Indústria, Comércio e Serviços. 2024. Secretaria de Desenvolvimento Industrial, Inovação, Comércio e Serviços. Planilha de Diagnóstico BIM para o Setor Público e Privado. Brasília, DF. Disponível em: https://www.gov.br/mdic/pt-br/assuntos/ambiente-de-negocios/competitividade-industrial/construa-brasil/metas/apoiar-acoes-de-estruturacao-do-setor-publico-para-a-adocao-do-bim. Acesso em: 22 jun. 2025.
[13] Conselho de Arquitetura e Urbanismo do Brasil (CAU/BR). 2015. Censo dos Arquitetos e Urbanistas do Brasil. Brasília, DF. Disponível em: https://www.caubr.org.br/wp-content/uploads/2022/12/Censo_CAUBR_06_2015_WEB.pdf. Acesso em: 26 jun. 2025.
[14] Aftab, U.; Jaleel, F.; Mansoor, R.; Haroon, M.; Aslam, M. 2023. Obstructions in BIM implementation for developing countries – A mini-review. Engineering Proceedings, 45(26). Disponível em: https://doi.org/10.3390/engproc2023045026. Acesso em: 26 jun. 2025.
[15] Santos, H.P.; Starling, C.M.D.; Andery, P.R.P. 2015. Um estudo sobre as causas de aumentos de custos e de prazos em obras de edificações públicas municipais. Ambiente Construído, 15(4), 225–242.
COMO CITAR
Rosa, G.A.A.; Oliveira, A.B.F. 2025. Uso do BIM no gerenciamento de custos em pequenas e médias obras na construção civil. Revista E&S, 6: e2024023.
SOBRE AS AUTORAS
Giovanna Aparecida Alves Rosa – Especialista em Gestão de Projetos. Engenheira Orçamentista. Avenida Segunda Avenida, 4B-14, Condomínio Cidade Empresarial, 74934-625, Vera Cruz, Aparecida de Goiânia, GO, Brasil.
Ana Beatriz de Figueiredo Oliveira – Doutora em Arquitetura e Urbanismo. Professora orientadora. Rua Cezira Giovanoni Moretti, 580, Santa Rosa, 13414-157, Piracicaba, São Paulo.
Quem editou este artigo
Luiz Eduardo Giovanelli
















